乐鱼网页版页面-乐鱼(中国)

ELEVATOR DOOR SYSTEM电梯门系统

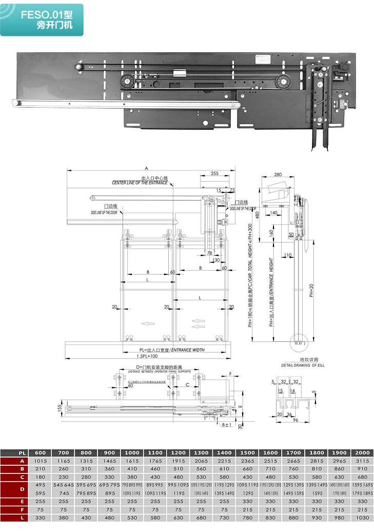
FESO.01型旁开门机